Woonoppervlakte
Circa 77 m²
Perceeloppervlakte
Circa 152 m²
Bouwjaar
Gebouwd in 1976
Aantal kamers
4 kamers (3 slaapkamers)

Bergkristaldijk 79

4706 DT, Roosendaal (Noord-Brabant)

Bergkristaldijk 79 in Roosendaal is zo'n plek waar je je direct thuis voelt. Gelegen in een gezellig, rustig hofje in de gewilde wijk "De Dijken" en op steenworp afstand van het Dijkcentrum. Hier woon je heerlijk rustig, met alle voorzieningen om de hoek — ideaal voor wie het beste van beide werelden zoekt!
Wat maakt deze woning bijzonder? Denk aan een moderne, greeploze keuken met Quooker, een stijlvolle badkamer met zwarte accenten, 3 slaapkamers én 6 zonnepanelen. Deze woning is perfect afgewerkt en daarmee helemaal instapklaar! Zie jij jezelf hier al wonen? Plan snel die bezichtiging in!

Entree
Je komt thuis via een nette voortuin in een doodlopend en kindvriendelijk hofje. Via de voordeur stap je de hal in, waar je direct toegang hebt tot de meterkast en de gezellige woonkamer.

Wonen & Koken
De woonkamer voelt licht en uitnodigend aan. Dankzij de grote ramen aan de voorzijde valt het daglicht rijkelijk naar binnen. Het zitgedeelte bevindt zich aan de voorzijde van de woning, ideaal voor een knusse bankhoek. In het midden van de ruimte is plek voor een eettafel, perfect voor lange etentjes met vrienden of familie. Achterin vind je de strakke, moderne keuken in wit. Greeploos, strak, en van alle gemakken voorzien: kookplaat, oven, afzuigkap, vaatwasser en een luxe Quooker. De losse koelkast kan worden overgenomen. Vanuit de keuken kijk je uit op de achtertuin, wat koken nog net iets leuker maakt!
Via een achtergelegen hal kom je bij het toilet en de trap naar boven. Ook is er toegang tot de handige berging waar je de wasmachine kwijt kunt én een deur naar de tuin. Extra bergruimte nodig? De trapkast in de woonkamer is ideaal voor je voorraad of schoonmaakspullen.

Slapen, Dromen & Douchen
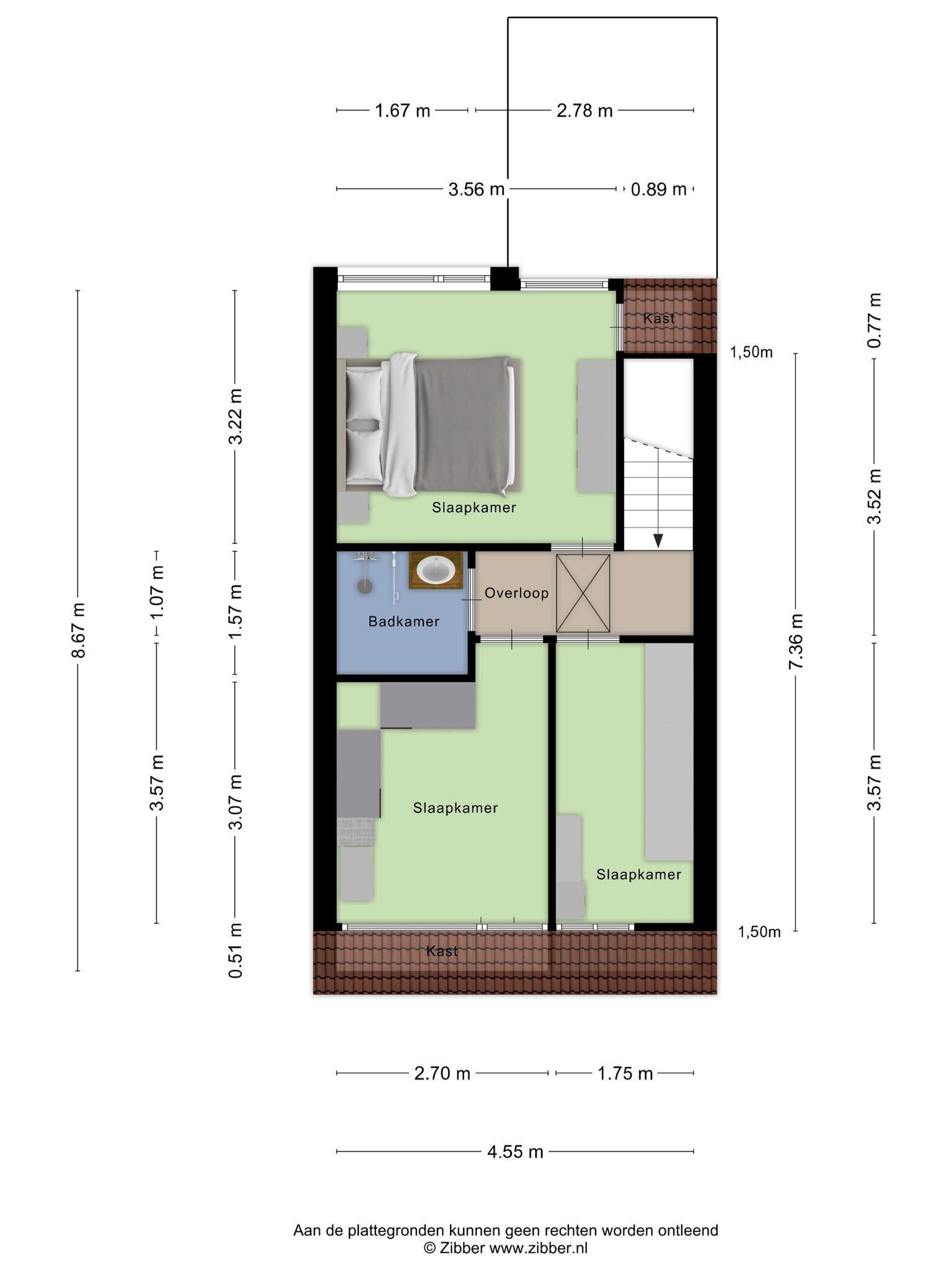
Op de eerste verdieping bevinden zich drie slaapkamers. Aan de achterzijde ligt de royale master bedroom, groot genoeg voor een kingsize bed én een kledingkast. Aan de voorzijde liggen nog twee slaapkamers, waarvan één momenteel wordt gebruikt als inloopkast. De andere is ook ruim van formaat en goed in te richten als werk- of kinderkamer. De badkamer is echt een plaatje: modern en sfeervol afgewerkt met beige tegels en zwarte accenten. Je vindt er een inloopdouche en een stijlvol wastafelmeubel met waskom.

Tuinieren, Zonnen & Genieten
De achtertuin is volledig betegeld en biedt genoeg ruimte voor een loungeset of eettafel. Een heerlijke plek om te relaxen, al verdient de tuin wellicht nog wat liefde van een groene vingers.

Omgeving en Faciliteiten
De wijk "De Dijken" staat bekend om zijn rustige, kindvriendelijke karakter en fijne ligging nabij winkelcentrum Dijkcentrum. Hier vind je supermarkten, winkels, eetgelegenheden en meer. Ook scholen, openbaar vervoer en sportfaciliteiten zijn binnen handbereik. Binnen enkele minuten zit je op de uitvalswegen richting Breda, Bergen op Zoom of Antwerpen.

Sfeer en Doelgroep
De sfeer in deze woning is modern, licht en uitnodigend. Met zijn verzorgde afwerking, zonnepanelen en complete voorzieningen is dit de perfecte woning voor starters of jonge gezinnen die op zoek zijn naar een fijne, duurzame plek om te wonen.

Toelichtingsclausule NEN2580:
De Meetinstructie is gebaseerd op de NEN2580. De Meetinstructie is bedoeld om een meer eenduidige manier van meten toe te passen voor het geven van een indicatie van de gebruiksoppervlakte. De Meetinstructie sluit verschillen in meetuitkomsten niet volledig uit, door bijvoorbeeld interpretatieverschillen, afrondingen of beperkingen bij het uitvoeren van de meting.

Plattegronden

Overdracht

Koopsom
€ 305.000 k.k.
Status
Verkocht
Aanvaarding
In overleg

Bouw

Object type
Eengezinswoning, tussenwoning
Soort bouw
Bestaande bouw
Bouwjaar
1976
Soort dak
Zadeldak bedekt met pannen

Oppervlakte en inhoud

Woonoppervlakte
77 m²
Perceeloppervlakte
152 m²
Inhoud
321 m³
Overige inpandige ruimte
13 m²

Indeling

Aantal kamers
4 kamers (3 slaapkamers)
Aantal badkamers
1 badkamer
Badkamervoorzieningen
Wastafel, wastafelmeubel, inloopdouche
Aantal woonlagen
3 woonlagen
Voorzieningen
Zonnepanelen

Energie

Energielabel
B
Energielabel registratie
26-06-2025
Isolatie
Dubbel glas, hr glas
Verwarming
Cv-ketel
Warm water
Cv-ketel
Cv ketel
Remeha combiketel gas gestookt uit 2011 (eigendom)

Buitenruimte

Ligging
In woonwijk
Tuin
Achtertuin, voortuin

Bergruimte

Schuur / berging
Aangebouwd steen

Garage

Soort garage
Geen garage

Parkeergelegenheid

Soort parkeergelegenheid
Openbaar parkeren

Energieverbruik in Roosendaal

Energielabel deze woning

Energielabel B

Publicatie energielabel: 26-06-2025

Stroomverbruik per jaar

2790 kWh

(Gemiddelde tussenwoning in Roosendaal)

Gasverbruik per jaar

1080 m³

(Gemiddelde tussenwoning in Roosendaal)

* Cijfers zijn afkomstig van het CBS en bedoeld als indicatie en kunnen verschillen voor deze woning

Indicatie hypotheeklasten

Eigen inleg:
Spaargeld / overwaarde

Rente:
Laagste 10-jaars rente

Laagste 10-jaars rente

2,78% - Centraal Beheer - NHG


3,04% - Centraal Beheer - 80%

Laagste 20-jaars rente

3,29% - Centraal Beheer - NHG


3,52% - Centraal Beheer - 80%

Laagste 30-jaars rente

3,41% - Centraal Beheer - NHG


3,7% - Argenta - 80%


Hypotheek:

Bruto maandlasten: € 0 p/m

Netto maandlasten: € 0 p/m

Hoe berekenen we dit?

Het rentepercentage is gebaseerd op de laagste 10 jaars vaste rente voor één hypotheekdeel. De vermelde rente (2.78% met NHG) is gecontroleerd op 27-04-2026. Deze berekening is gebaseerd op een annuïteitenhypotheek die volledig wordt afgelost, waarbij de maandlasten gedurende de gehele looptijd gelijk blijven. De werkelijke rente en netto maandlasten kunnen variëren, afhankelijk van uw persoonlijke situatie en de hypotheekverstrekker. Raadpleeg een financieel adviseur voor een nauwkeurige berekening en advies. Aan deze berekening kunnen geen rechten worden ontleend; het dient enkel als indicatie.

Documentatie

Zonnegrenzen bekijken

Op de kaart

Inwoners in Roosendaal

Cijfers voor postcodegebied 4706

Totaal aantal inwoners
11315 inwoners
Mannen
49%
Vrouwen
51%

Inwoners in Roosendaal

Cijfers voor postcodegebied 4706

tot 15 jaar
16%
15 tot 25 jaar
11%
25 tot 35 jaar
20%
45 tot 65 jaar
30%
65 en ouder
22%

Huishoudens in Roosendaal

Cijfers voor postcodegebied 4706

Eenpersoons zonder kinderen
26%
Meerpersoons zonder kinderen
35%
Huishoudens zonder kinderen
61%

Huishoudens in Roosendaal

Cijfers voor postcodegebied 4706

Huishoudens met één kind
8%
Huishoudens met meerdere kinderen
31%
Huishoudens met kinderen
39%

Woningen in Roosendaal

Cijfers voor postcodegebied 4706

Woningen voor 1945
2%
Woningen tussen 1945 en 1965
1%
Woningen tussen 1965 en 1975
6%
Woningen tussen 1975 en 1985
68%
Woningen tussen 1985 en 1995
4%

Woningen in Roosendaal

Cijfers voor postcodegebied 4706

Woningen tussen 1995 en 2005
9%
Woningen tussen 2005 en 2015
10%
Woningen na 2015
1%
Huurwoningen
30%
Koopwoningen
70%

Overige in Roosendaal

Cijfers voor postcodegebied 4706

Gemiddelde WOZ waarde
€ 263.000,-
Personen onder de 65 met uitkering
8%

Overige in Roosendaal

Cijfers voor postcodegebied 4706

Adressen per km²
1326
Stedelijkheid (schaal 1 op 5)
60%
Postcode kaart 4706 Gemeente kaart roosendaal

Indien u vragen heeft of u wilt een bezichtiging inplannen, dan kunt u gebruik maken van het formulier hiernaast. Er zal daarna op korte termijn contact met u worden opgenomen.

Vakidioten met een passie voor vastgoed

Bij C&R Makelaars draait alles om jou en je woning. Wij zijn een frisse, energieke generatie makelaars met een passie voor mensen en de woningmarkt.

We geloven in een persoonlijke aanpak zonder poespas: eerlijk, transparant en altijd met een flinke dosis enthousiasme. Het verkopen van je huis is een belangrijke stap, en daarom begeleiden we je op een manier die bij jou past, van begin tot eind.

Met onze diepgaande kennis van de lokale markt geven we je waardevol advies dat perfect aansluit bij jouw situatie én dat van potentiële kopers.

Daarnaast staat ons creatieve team van vastgoedmarketeers klaar om jouw woning in de schijnwerpers te zetten. Met slimme en doordachte strategieën zorgen we ervoor dat je huis opvalt en het maximale resultaat behaalt.

Jouw tevredenheid is ons einddoel. We zetten alles op alles om je verwachtingen te overtreffen. Nieuwsgierig naar ons team? Klik op de button hieronder en maak kennis met ons!

Vakidioten met een passie voor vastgoed
Reviews C&R Makelaars

Bergkristaldijk 79, Roosendaal

€ 305.000 k.k. - Verkocht

Helaas, deze woning is verkocht!

Net te laat, deze woning is al verkocht. Laat een zoekopdracht bij ons achter zodat wij u direct kunnen helpen wanneer er nieuw aanbod beschikbaar komt.